Vennersborgveien 6 - Bestum, Oslo

Tiltaket omfattet 3 stk. hus i rekke og oppføring av ny enebolig.

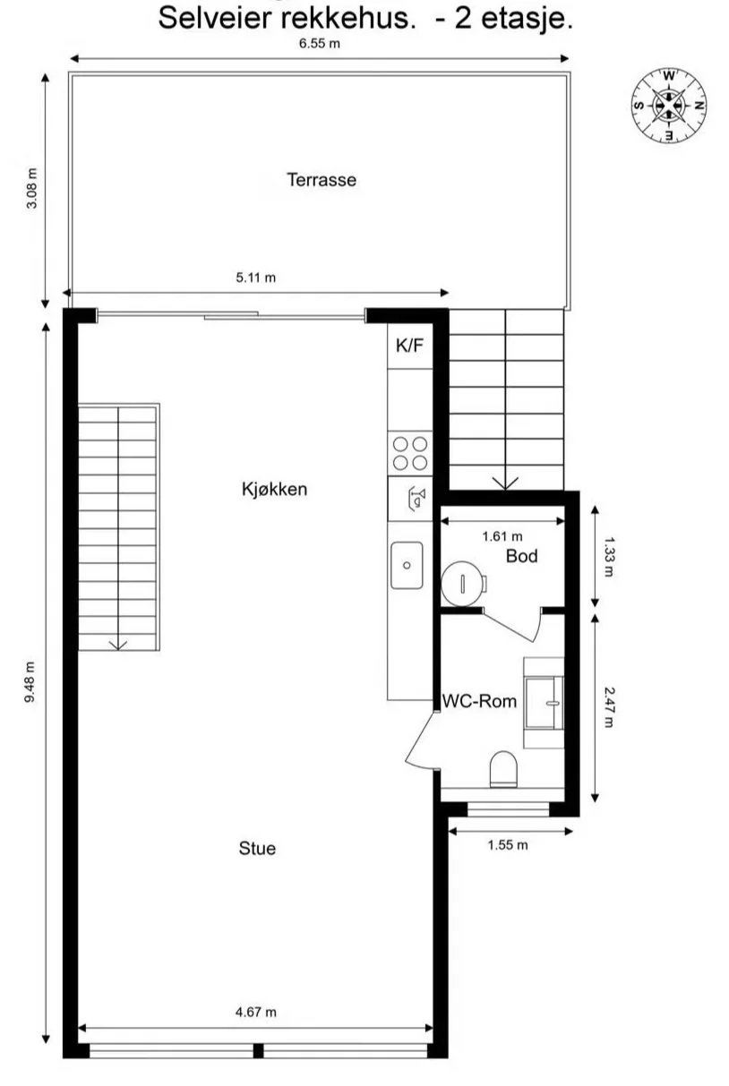
Moderne rekkehus på over 3 plan fra 2018, beliggende i bydelen Ullern. Boligen en overbygget terrasse og en takterrasse på øverste plan. Veletablert og attraktiv område som passer godt for barnefamilier med gangavstand til kollektiv transport og kort vei inn til Oslo sentrum. Nærhet til sjøen og Bygdøy med tur- og bademuligheter.

Type: Rekkehus og Enebolig
Status: Bygget 2018

 
 
 
Forrige
Forrige

Brantenborgveien 9 - Slemdal, Oslo

Neste
Neste

Rådhusgata 17 - Drammen sentrum